Support de toit pour abri de table d'alimentation, galvanisé

Acheter l'article

CHF 1'775.00

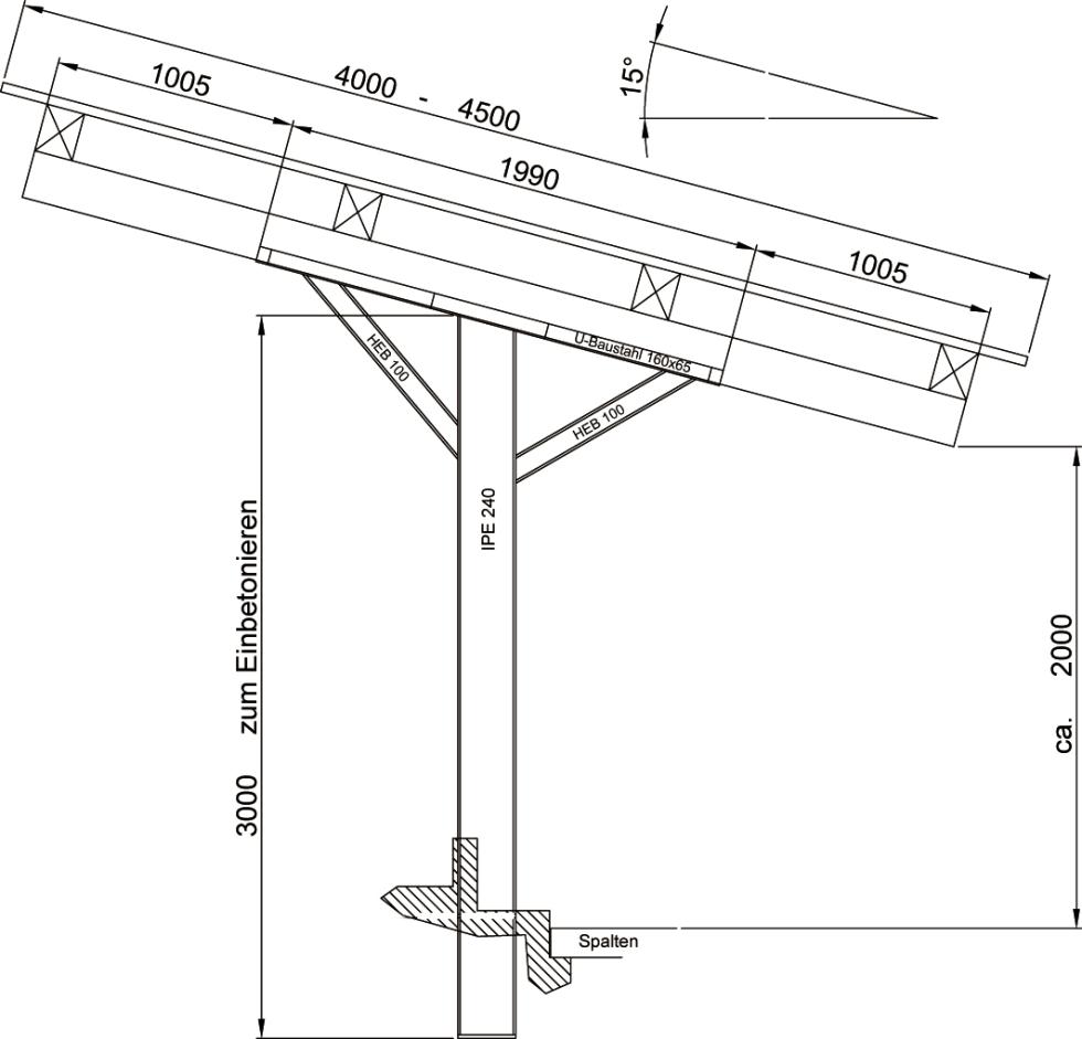
La poutre de toit pour la couverture de la table d'alimentation est composée d'une poutre IPE et d'un profilé en U avec entretoises transversales soudées et galvanisées. Le poutre IPE est bétonnée. Le chevron en bois a les dimensions 14 x 28 cm. Les dimensions des pannes et le type de couverture dépendent des charges de neige locales. charges de neige.

Disponibilité

mind. 4 Wochen

Lieferung

  • Lieferung in die Schweiz
  • Camion
    Les frais de livraison exacts vous seront indiqués lors du passage en caisse, avant que vous ne finalisiez votre commande. Selon le montant total de la commande et le code postal de votre domicile, ils varient entre CHF 96.00 et CHF 1120.00. Pour plus de détails, voir Frais de livraison.

Nr. d'article

KS 2300

Zubehör

Les produits ci-dessous correspondent à l'article sélectionné.

Erfolg

Der Artikel wurde erfolgreich in den Warenkorb gelegt.
Zubehör zu Ihrem Einkauf Les produits ci-dessous correspondent à l'article sélectionné.
×